- Nombre del proyecto:
CENTRO DE DESARROLLO COMUNITARIO (CDC)
- Ubicación: Tapachula
Descripción del proyecto
El Centro de Desarrollo Comunitario CDC es un conjunto arquitectónico donde se ofrecen una serie de servicios de asistencia social, que favorecen el bienestar y participación social de la población beneficiaria, por medio de programas que propician una mejor organización, interrelación y superación de la comunidad. A través del CDC es posible contribuir al desarrollo integral de las familias y comunidades, desde un enfoque de género, a través de programas de atención a pueblos indígenas y grupos vulnerables, y aportar, por medio de la educación de la población, a la mejora de la seguridad pública y coadyuvar a la conservación del medio ambiente.
El CDC es parte de una estrategia amplia de apoyo al desarrollo de capacidades y oportunidades de la población de Tapachula, que contribuye a la transformación de las colonias y áreas periurbanas cercanas en sitios mas seguros, productivos y habitables. Se favorecerá la integración social y el desarrollo comunitario, se fomentará la convivencia y se fortalecerá la identidad colectiva por medio del acceso a servicios como: atención médica básica, salud mental, trabajo social, capacitación para el trabajo, deporte y recreación, cuidado a los menores, desde el nivel de lactantes hasta el nivel de preescolar, ayuda alimentaria directa, trabajo social, entre otros.
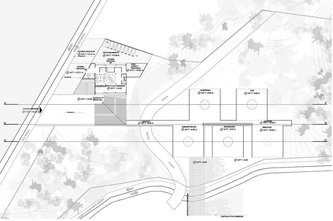
El proyecto consta de 2 partes principales: el área construida, que consta de 6 módulos, y el área libre. En los módulos se brindan diferentes servicios a la población, entre las que se encuentran: niños y niñas, desde lactantes a nivel preescolar, personas con discapacidad, madres de familia y población en situación de vulnerabilidad; en las zonas al aire libre se incluyen: un foro, una plaza de acceso, estacionamientos y un patio de descarga. Los 6 módulos son independientes entre sí, y brindan los siguientes servicios: Apoyo a la Comunidad, Gobierno, Enseñanza y Capacitación, Recreación, Centro de Atención al Desarrollo Infantil CADI, y Servicios.
El ingreso principal al CDC se ubica en el frente a la Avenida 8va Norte. Desde la plaza de acceso se accede al foro al aire libre, junto al cual se ubican unas escalinatas que permiten acceder a la terraza del módulo de Apoyo a la Comunidad y, a la vez, favorecen la estancia de los usuarios y la realización de actividades culturales al aire libre. Todos los módulos, con excepción de Apoyo a la Comunidad, se ubican en la terraza norte del predio en una cota inferior que el acceso, y están soportados sobre pilotes; esto permite la infiltración de agua pluvial y el aprovechamiento del suelo con zonas resguardadas del sol y la lluvia. El acceso a los módulos se realiza a través de un pasillo central elevado, que favorece las vistas lejanas y la observación de la naturaleza desde una mejor posición.